Objektart
Adresse
Objektdaten
Informationen
Ausstattung
Details
OFFENE BESICHTIGUNG:
Sonntag 19. April und Montag 20. April jeweils von 15-18 Uhr
Adresse: Albert-Rosshaupter-Str. 44
Die angebotene Wohnung befindet sich in einem gepflegten Mehrfamilienhaus aus dem Jahr 1982 und liegt im 1. Obergeschoss, bequem erreichbar über einen Aufzug. Das Gebäude präsentiert sich in einem sehr ordentlichen und laufend instand gehaltenen Zustand.
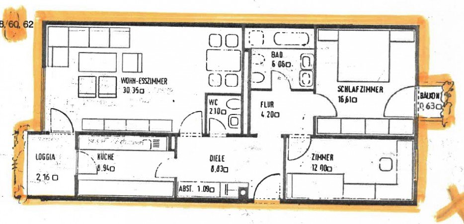
Die Wohnung überzeugt durch einen großzügigen und gut durchdachten Grundriss, drei Zimmer sowie eine separate, geräumige Wohnküche mit Einbauküche. Besonders hervorzuheben ist der direkte Zugang zum großzügigen Westbalkon sowohl vom Wohnzimmer als auch von der Küche. Dieser ist zum ruhigen Innenhof nach Westen ausgerichtet und bietet eine angenehme Abendsonne sowie eine hohe Aufenthaltsqualität.
Ergänzt wird dies durch einen zweiten, kleineren Balkon mit Ost-Ausrichtung, der vom Eltern-Schlafzimmer aus zugänglich ist und ideale Lichtverhältnisse in den Morgenstunden bietet. Insgesamt ermöglicht die Wohnung somit eine optimale Belichtung zu verschiedenen Tageszeiten.
Der großzügige Flur mit praktischem Einbauschrank sorgt für eine angenehme Erschließung und zusätzlichen Stauraum. Neben dem großen Schlafzimmer stehen ein weiteres helles Zimmer sowie ein geräumiges Badezimmer und ein separates Gäste-WC zur Verfügung, was den Wohnkomfort deutlich erhöht. Hochwertiges Echtholzparkett in den Wohnräumen unterstreicht den gepflegten und wohnlichen Charakter.
Trotz der zentralen Lage ist die Wohnung durch ihre Ausrichtung in den Innenhof angenehm ruhig und gut von der Hauptstraße abgeschirmt. Zur Wohnung gehört ein eigenes Kellerabteil mit zusätzlichem Stauraum. Ein Tiefgaragen-Duplexstellplatz (oben) ist ebenfalls vorhanden und stellt insbesondere in innerstädtischer Lage einen großen Vorteil dar. Fahrradabstellmöglichkeiten befinden sich im Innenhof.
Die Beheizung des Gebäudes erfolgt über eine zentrale Erdgasheizung aus dem Jahr 1999.
OFFENE BESICHTIGUNG:
Sonntag 19. April und Montag 20. April jeweils von 15-18 Uhr
- Adresse: Albert-Rosshaupter-Straße 44, 81369 München
- Baujahr: 1982
- Wohnfläche gesamt: ca. 93 m²
- Nutzfläche gesamt: ca. 96 m²
Einheiten: Wohnung, Kellerabteil und TG-Duplex oben
- Zimmer: 3
- Balkone: 2
- Bäder: 1
- Gäste-WC: ja
- Einbauküche: ja
- Verfügbarkeit: bezugsfrei
- Hausgeld: Gem. Wirtschaftsplan 561 Euro monatlich inkl. Zuführung zur Erhaltungsrücklage
- Parkett überwiegend
- Keller
- Gasheizung aus dem Jahr 1999, regelmäßig gewartet
- Gute Anbindung an den öffentlichen Nahverkehr
Die Albert-Roßhaupter-Straße 44 in München vereint urbanes Leben mit überraschend ruhiger Wohnqualität. Im beliebten Stadtteil Sendling gelegen, profitieren Sie von einer hervorragend ausgebauten Infrastruktur mit zahlreichen Einkaufsmöglichkeiten, Cafés, Restaurants sowie allen Einrichtungen des täglichen Bedarfs in unmittelbarer Umgebung.
Die nahegelegene S- und U-Bahnstation Harras sorgt für eine ausgezeichnete Anbindung an die Innenstadt und weitere zentrale Stadtteile - ideal für alle, die kurze Wege und maximale Flexibilität im Alltag schätzen.
Ein besonderer Vorzug dieser Wohnung ist ihre Ausrichtung zum Innenhof: Trotz der Lage an einer belebten Hauptstraße genießen Sie hier eine angenehm ruhige und geschützte Wohnatmosphäre. Der Trubel der Stadt bleibt außen vor, während Sie gleichzeitig alle Vorteile einer zentralen Lage nutzen.
So entsteht eine seltene Kombination aus lebendigem Umfeld, hervorragender Erreichbarkeit und entspanntem Wohnen - ein attraktives Gesamtpaket für Eigennutzer und Kapitalanleger gleichermaßen.
Es liegt ein Energieverbrauchsausweis vor.
Dieser ist gültig bis 21.6.2028.
Endenergieverbrauch beträgt 75.90 kwh/(m²*a).
Wesentlicher Energieträger der Heizung ist Gas.
Das Baujahr des Objekts lt. Energieausweis ist 1999.
Die Energieeffizienzklasse ist C.
Energieverbrauchsausweis, Endenergieverbrauch 75,9 kWh/(m²·a), Erdgas E, Baujahr 1982, Energieeffizienzklasse C, gültig bis 21.06.2028
Ansprechpartner
Telefax: 004961443374710
Mobil: 00491728333464
mischa.kunz@remax.de
Energieausweis (Verbrauchsausweis)
75,90 kWh / (m²*a) Energieverbrauchskennwert
75,90 kWh / (m²*a) Energieverbrauchskennwert
75,90 kWh / (m²*a) Energieverbrauchskennwert
Weitere Informationen
| Wesentlicher Energieträger | GAS |
| Energieausweis gültig bis | 2028-06-21 |
| Energieausweis Jahrgang | ab dem 1.5.2014 |
| Energieausweis Werteklasse | C |
| Energieausweis Baujahr | 1999 |
| Energieausweis Gebäudeart | Wohngebäude |
| Heizung | Zentralheizung |
| Befeuerung | Gas |
Ich bin damit einverstanden, dass mir Karten von Google angezeigt werden. Es gelten die Datenschutzbedingungen von Google (https://policies.google.com/privacy).
Ich bin einverstanden